Detail 1
Most outdoor projects do require a permit. It is part of our job as a contractor.
If you feel comfortable building your new deck or any outdoor structure by yourself, but are struggling to create construction plans to meet your local county codes. We can help with that. Most counties do follow the IBC code that is updated every 3 years. However they are not required to follow every single code and can ignore or override certain codes to their own needs. That’s why there can be different requirements in each county. Sometimes an engineered stamp is required as well. Our structural engineer will review and seal your plans when needed.
Part of the permit process includes the required site plan showing the proposed project and dimensions of the structure including the distance to the property lines all on scale.
Fine Decks Inc. can help you understand the codes and requirements for your county and your specific project.
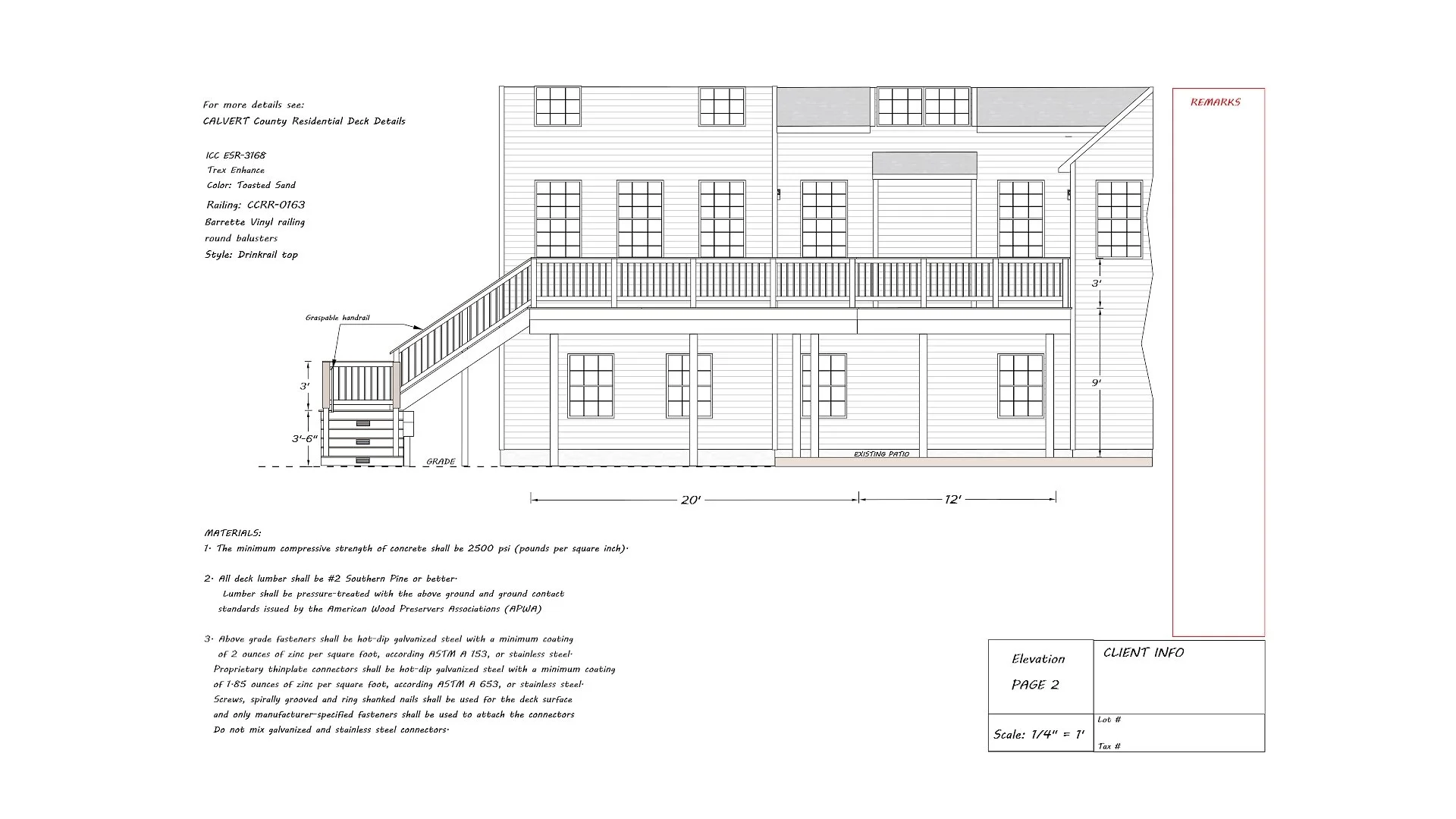
You as the home owner will be the builder and you are the one that will need to pull the permit as requested by the county. We offer a complete package that includes the required construction plans (footing, framing, side and elevation views), site plan and application forms. It is a piece of mind to know that you have all the correct paperwork with you when you walk into the permit office. We have seen many home owners send back home for not having the correct paperwork. Even for us after 30 years we are send home sometimes!
Our package Includes:
Application form filled in. Site plan on scale showing the deck, well/septic (if any) Construction plans with (3 copies) in a 11x17 size Grading form ( if needed )
Cost will depend on scope of project and requirements by each county. Please contact us for a free quote.
